
原标题:高档灰+Chic墨绿,打造97㎡时尚北欧家,有用颜值全在线!
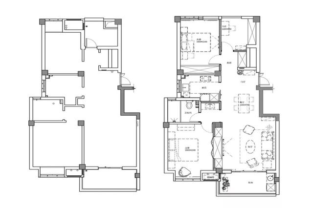
平面图
玄关
玄关摆放了一张白色小鞋柜,
安顿上绿植与装饰画,
以及大理石挂钟、黑色壁灯,
精约而舒适。
客厅
全屋选用浅灰色为主调,
用特有的明度和柔光缓解疲乏,
营建安静放松的空间气氛。
沙发墙挂上一幅
黄橙色彩的笼统装饰画,
结合少许墨绿色元素的点缀,
让空间精约高雅而不失新鲜坦率感。
米色几许地毯、是非撞色茶几
以及笼统的装饰画与新鲜绿植,
每一个细节都饱含着对日子的热心。
长虹玻璃以其特有的时尚和模糊美感,
给人精约而高档的视觉感。
客厅取消了电视柜,
选用电视机直接壁挂上墙,
内嵌式蓝色储物柜特意规划成对称款式,
平衡整个区域的重心。
沙发周围的多层置物架,
摆上精美的花瓶与绿植、书本,
点缀出新鲜精约的空间风格。
暖色的灯带在翻开的瞬间,
似乎为空间披上了一件柔软的外衣。
餐厅
客厅与餐厅之间没有显着分隔,
整个空间连为一体,
充分的光线,
为家里带来舒适与惬意。
将全身镜融入移动轨迹
并安顿在餐厅墙面上,
轨迹一侧DIY了三个挂衣钩,
挂上衣物和包包又是一番景色。
木质餐桌调配黑色靠背椅,
参加一盏暖橘色的吊灯,
全体散逸着浪漫自在的气味。
厨房
U型橱柜规划,
最大极限的提高了厨房的利用率。
无拉手抽屉的挑选
使全体线条洁净妥当,
调配地上花砖,
带来新鲜朗达的北欧气味。
主卧
主卧以舒适的灰白色彩为根底,
床头做了特别的硬包处理,
高雅的蓝色散发着安静舒缓的气味。
对称的黑色托盘小边几,
代替了传统的床头柜,
也让卧室显得愈加精约特别。
精约妥当的黑色衣帽架规划,
与床头线条相照应,
便于日常衣物的搭放。
床尾的入墙式衣柜规划,
为屋主预留了足够的收纳功用,
且视觉上不会有压迫感。
次卧
次卧连续浅灰色的空间基调,
樱桃木的床结合舒适的灰白床品,
全体轻松而天然。
床头布景墙上的雪兔装饰画,
为简练的空间带来一种高雅的感觉。
一整面的衣柜规划,
满意衣物收纳的需求。
温润天然的木质梳妆台
代替了床头柜的功用,
颜值与有用性兼备。
书房
书房在蓝紫和橘黄的冷暖色磕碰下,
精美与生机气味并存。
光线从百叶窗投射进来,
衬托着一旁的书桌亮堂而温顺。
卫生间
卫生间将洗手盆外置在过道区域,
隐藏灯带的规划,
丰厚空间营建出明暗层次。
加以地上花砖的点缀,
全体精约而不失精美感。
阳台
阳台更重视有用性,
除了寄存洗衣机,
洗衣区还能够收纳清洁用品等各种杂物。
地上连续厨卫区域的六角花砖,
白色窗布更是衬托出空间的洁净清新。

女孩长时间穿“光腿神器”进急诊 医生:注意四类风险
TUMI途明中国首家旗舰店于上海璀璨启幕
心怀热枕,逐梦永恒 梦特娇与任重的优雅协奏
为都市生活注入无限生命力 上海时装周GORE-TEX品牌空间限时开启
星光YOUNG年度公益盛典圆满落幕,汇聚爱心共筑音乐梦想
TESTONI隆重发布2025春夏独家“尊享之选” 系列
Testoni 女装60周年重现经典——2025春夏系列发布
inewme艾柠美UV小紫镜新品上市:携手优彩科技,打造防晒美妆新纪元