
原标题:55平方小户型装修事例,超级精约,照着装也不会犯错
小户型的装修历来都不是简略的事,很多人总是觉得小户型便是拥堵的代表,不管怎么装修都不会显层次。其实小户型装修只需你合理利用好每一处空间,做好规划和调配,相同能够精美又有质感,今日咱们就来看看这个超精约的小户型装修事例吧,期望你能够学习一下。
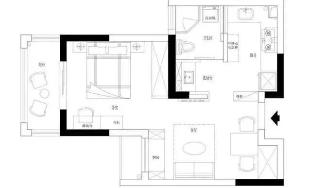
平面布置图
玄关,进门右手边做了悬空的玄关柜,百叶柜门透气性很好,中心还留出空间,可拿来随手放一下钥匙、钱包等等,或许也能够摆放装修品装点一下,日常运用起来很便利。
其实咱们也能够看出来,这是一个开门见厅的户型,客厅餐厅厨房都是开放式的布局,小户型挑选开放式布局更简略显得空间宽阔。
咱们我们能够看到厨房就在玄关柜的后边,并且厨房的空间也不大,做成U型的布局,厨房动线简略,橱柜配色也很新鲜洁净,吊柜下还装置了灯带照明,小厨房用起来安心又舒适。
进门左手边便是小餐厅了,几许造型的木质餐桌挺有特性,调配蓝灰色的铁质座椅,还有垂下来的三盏不同造型的吊灯,都让餐厅这个小空间看起来更有层次感,更有质感。并且餐厅周围还做了一个白色嵌入墙面的餐边柜,不占用空间,还参加蝴蝶装修,增加几分灵动的感觉。
客厅,客厅的空间也很小,所以没有再装置电视柜,直接把电视装在墙面上,还在电视布景墙上做了隔板收纳,既有了收纳空间,还装修了墙面
沙发布景墙也相同超级精约,筒灯的灯火打在沙发布景墙的茸毛挂画上,下面是灰色布艺沙发,暖暖的灯火营建一个温暖舒适的气氛。客厅旁还做了一个小飘窗柜,既能够收纳东西,还能够在这看看书放松一下。
卧室,卧室里带有一个大阳台,在阳台和卧室之间做了玻璃推拉门,既划分了空间,又不会遮挡光线。床头布景墙上贴树叶壁纸,新鲜又立体,调配白色铁艺大床,精约漂亮。
卫生间,小卫生间全体以白色为主,看起来洁净明亮,地上的小花砖增加风格,也防止单调,镜柜、浴室柜,还有毛巾架收纳功用也不错。

女孩长时间穿“光腿神器”进急诊 医生:注意四类风险
TUMI途明中国首家旗舰店于上海璀璨启幕
心怀热枕,逐梦永恒 梦特娇与任重的优雅协奏
为都市生活注入无限生命力 上海时装周GORE-TEX品牌空间限时开启
星光YOUNG年度公益盛典圆满落幕,汇聚爱心共筑音乐梦想
TESTONI隆重发布2025春夏独家“尊享之选” 系列
Testoni 女装60周年重现经典——2025春夏系列发布
inewme艾柠美UV小紫镜新品上市:携手优彩科技,打造防晒美妆新纪元